Images

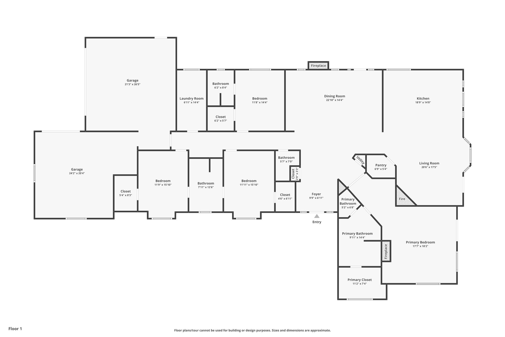
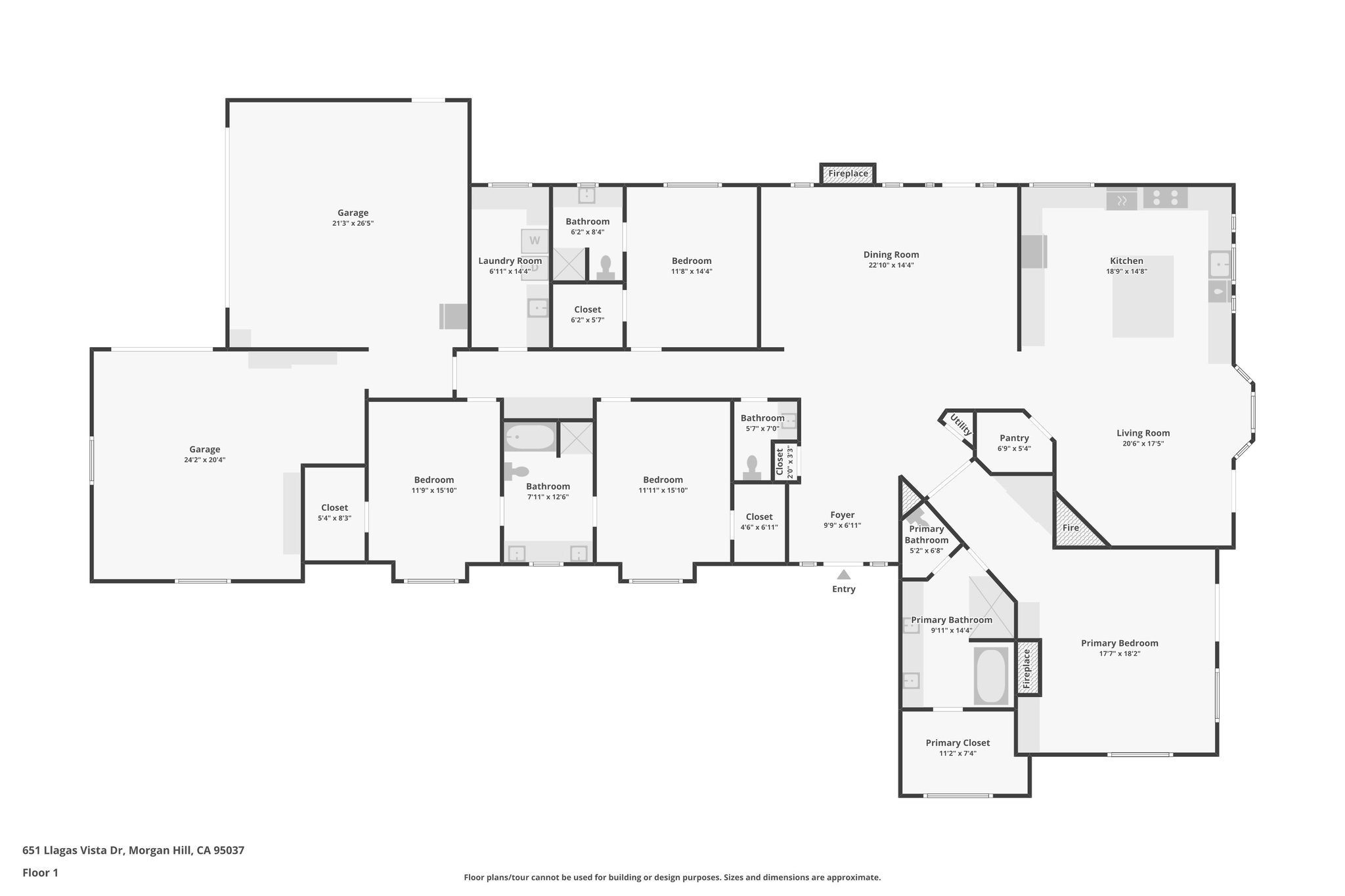
Floor Plans

3D Tour

Contact

Feel free to contact us for more details!

Brett Jennings

Brett Jennings

Real Estate Experts

6698772289

brett@therealexperts.com